Промышленный электрический водонагреватель 2500 литров предназначен для горячего водоснабжения жилых и промышленных объектов, больниц, учебных заведений и гостиничных комплексов. Нагрев воды в водонагревателях может производиться, как от встроенных блок - ТЭНов, так и от теплообменника косвенного нагрева.
Корпус емкости водонагревателя 2500 литров и нагревательные элементы изготовлены из нержавеющей стали и рассчитаны на длительный срок эксплуатации. При применении водонагревателя для нагрева воды для технологических нужд производства корпус может быть изготовлен из углеродистой стали. Снаружи емкость изолирована высококачественной теплоизоляцией, сверху защищена полимерной пленкой.
Водонагреватель вертикальный 2500 л. легко обеспечивает пиковые расходы системы горячего водоснабжения и может применяться совместно с другими источниками горячего водоснабжения в качестве основного или резервного. Теплообменник косвенного нагрева бойлера может быть выполнен, как в виде внешнего пластинчатого теплообменника, так и в виде встроенного змеевика из нержавеющей стали, теплоноситель в который подается от системы отопления здания.
Нержавеющие блок-ТЭНы из нержавеющей стали AISI316L, установленные в латунную или стальную гайку, не подвержены коррозии, уплотняются фторопластовой прокладкой.
Крепление ТЭНов на общей гайке
Блок-ТЭНы состоят из 3-х ТЭНов, впаянных в общую латунную гайку. Блок-ТЭНы, в отличие от ТЭНов на фланце удобны в эксплуатации и техническом обслуживании
Качественная теплоизоляция
Чем толще слой теплоизоляции водонагревателя, тем быстрее будет нагреваться вода и медленнее остывать, будет затрачиваться меньшее количество электроэнергии для нагрева воды.
Защита от перегрузок
Автоматические выключатели предназначены для защиты электрических цепей от перегрузок и токов короткого замыкания, а также для оперативного управления участками электрических цепей.
Защита от перегрева
Водонагреватель снабжен термоограничителем, который отключает электронагреватель по достижении предельной температуры воды, что позволяет избежать ее перегрева.
Механический терморегулятор
Терморегулятор применяется для ограничения температуры воды в водонагревателе.
Манометр
Манометр позволяет контролировать давление в водонагревателе.
Предохранительный клапан
Предохранительный клапан предназначен для автоматического сброса давления сверх допустимого, путем выпуска рабочей среды в атмосферу.
Экологичность
Электрические водонагреватели безопаснее чем твердотопливные или жидкотопливные, не выделяют дыма и угарного газа, не требуют чистки.
Технические характеристики
ХАРАКТЕРИСТИКИ
ПОКАЗАТЕЛИ
ЕДИНИЦЫ ИЗМЕРЕНИЯ
Артикул
АВП-НВ-2500
Ёмкость (±5%)
2500
литр
Материал бака
AISI 304 / S235JR (ст.3)
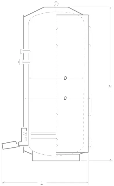
Диаметр бака D
1200
мм
Внешний диаметр B
1420
мм
Высота H
2570
мм
Масса водонагревателя
500
кг
Объем в упаковке
5
м³
Толщина теплоизоляции
100
мм
Допустимое давление
0,6
МПа
Рекомендуемая электрическая мощность встроенных ТЭНов (опция)
35
кВт
Время нагрева при рекомендуемой мощности от +5 до +65ºС ΔT=60ºC
5
час
Максимальная электрическая мощность встроенных ТЭНов
150
кВт
Пределы настройки термостата (±5)
от +30 до + 85
ºС
Номинальное напряжение для блок ТЭНов (±10%)
230 (400)
В
Рекомендуемая мощность внешнего/внутреннего теплообменника (опция)
90
кВт
Патрубки холодной / горячей воды. вн. резьба
2
дюймы
Сливной патрубок вн. резьба
1 ¼
дюймы
Патрубок под предохранительный клапан вн. резьба
1 ¼
дюймы
Гайка под гильзу терморегулятора / термоманометра вн. резьба
1/2
дюймы
Патрубок рециркуляции вн. резьба (опция)
1 ¼
дюймы
Количество гаек под блок-ТЭН G 1½" стандартная комплектация
При работе электрокотла с теплоаккумулятором основное время работы - ночное. При этом электроэнергия расходуется по льготному ночному тарифу (должен быть установлен двухтарифный электросчетчик), что значительно снижает затраты. Электрический котел работает по замкнутому контуру и нагревает за ночь воду в теплоаккумуляторе до 90 °C. В дневное время электрокотел полностью или частично отключается. Требуемая температура в системе отопления поддерживается при помощи трехходового термосмесительного клапана, который управляется датчиком температуры теплоносителя.
Аккумуляционная ёмкость представляет собой вертикальный герметичный бак, покрытый изоляцией и имеющий патрубки, посредством которых происходит подведение и отведение теплоносителя. Материал бака - чёрная или нержавеющая сталь.
КО - комплект отводящей запорной арматуры
КЦ - комплект запорной арматуры для циркуляции ГВС
КП - комплект подводящей запорной арматуры
1. Подвод холодной воды.
2. Подвод циркуляционной воды.
3. Отвод горячей воды.
4. Впуск воздуха при опорожнении.
5. Слив с предохранительно клапана.
6. Вентиль слива.
7. Слив
Конструкция водонагревателя накопительного типа с нагревом только от блоков электротэнов применяется на объектах, где нет стабильных источников теплоснабжения, или происходит их отключение на летний период.
На оболочке ТЭНа отсутствует напряжение, поэтому их можно эксплуатировать при непосредственном контакте с нагреваемой средой. Наиболее удобные в эксплуатации - это блок-ТЭНы. Они состоят из 3х ТЭНов, впаянных в общую латунную гайку. Такое крепление значительно надежнее и удобнее фланцевого соединения. Для нагрева теплоносителя в электрокотлах блок-ТЭНов может быть несколько. Мощность водонагревателя при этом является суммарной мощностью всех элементов. Внутри бака водонагревателя размещаются один или несколько ТЭНов.
Мощность регулируется ступенчато, включением одного или нескольких групп ТЭНовых нагревателей. Пользователь при необходимости может принудительно задать максимальную мощность, в пределах которой водонагреватель может динамически менять потребление. Блок управления в зависимости от настройки терморегулятора и температуры воды в водонагревателе производит включение или выключение контакторов нагревательных групп блок – ТЭНов, позволяет регулировать мощность нагрева и отключает нагреватели при возникновении аварийных ситуаций.
КО - комплект отводящей запорной арматуры
КЦ - комплект запорной арматуры для циркуляции ГВС
КП - комплект подводящей запорной арматуры
1. Подвод холодной воды.
2. Подвод циркуляционной воды.
3. Отвод горячей воды.
4. Впуск воздуха при опорожнении.
5. Шкаф автоматики и управления
6. Терморегулятор с термоограничителем
7. Слив с предохранительно клапана.
8. Вентиль слива.
9. Слив
Схема обвязки водонагревателя со встроенным трубчатым теплообменником
При использовании данной схемы обвязки, во встроенный теплообменник - змеевик подается вода из системы отопления. Регулирование температуры воды в водонагревателе осуществляется электромагнитным клапаном по сигналу от терморегулятора. Такая конструкция применяется на объектах, имеющих стабильный источник теплоснабжения в течение всего года.
По своей структуре теплообменник-змеевик представляет собой свернутую по определенному профилю трубу. Чаще всего подобные изделия производятся в форме спирали. Одной из модификаций являются устройства, в которых спиралью сворачивается несколько параллельно расположенных трубок. Элемент помещается в емкость, заполненную рабочей средой. Нагревание теплоносителя осуществляется за счет его непрерывного или периодического протока через систему. Конструкция погружного теплообменника может дополняться перемешивающими устройствами. Применение таких устройств обеспечивает увеличение эффективности работы прибора.
КО - комплект отводящей запорной арматуры
КЦ - комплект запорной арматуры для циркуляции ГВС
КП - комплект подводящей запорной арматуры
КТ-2 - комплект запорной арматуры со встроенным трубчатым теплообменником
1. Подвод холодной воды.
2. Подвод циркуляционной воды.
3. Отвод горячей воды.
4. Впуск воздуха при опорожнении.
5. Терморегулятор с термоограничителем
Схема обвязки водонагревателя с внутренним трубчатым теплообменником и блок ТЭНами
Данная комплектация водонагревателя применяется для объектов, где нет стабильных источников теплоснабжения, или происходит их отключение на летний период. Комбинированные водонагреватели содержат теплообменник и работают от систем отопления и от сети электропитания. Применение такой конструкции увеличивает скорость нагрева воды и сокращает затраты.
Комбинированные водонагреватели, так же как и водонагреватели косвенного нагрева, бывают со спиралевидным встроенным, либо с выносным пластинчатым теплообменником. Конструкция такого водонагревателя позволяет в тёплое время года получать горячую воду с использованием только электричества, а когда в работу включён отопительный котёл, нагрев воды происходит за счёт его нагретого теплоносителя. В случае необходимости быстрого нагрева большого количества воды могут быть задействованы оба типа нагрева.
КО - комплект отводящей запорной арматуры
КЦ - комплект запорной арматуры для циркуляции ГВС
КП - комплект подводящей запорной арматуры
КТ-2 - комплект запорной арматуры со встроенным трубчатым теплообменником
1. Подвод холодной воды.
2. Подвод циркуляционной воды.
3. Отвод горячей воды.
4. Впуск воздуха при опорожнении.
5. Шкаф автоматики и управления
Промышленный электрический водонагреватель объёмом 2500 литров предназначен для горячего водоснабжения жилых и промышленных объектов, больниц, учебных заведений и гостиничных комплексов. Оборудование рассчитано на интенсивную эксплуатацию и может работать как от встроенных блок-ТЭНов, так и от теплообменника косвенного нагрева.
Корпус ёмкости и нагревательные элементы изготавливаются из нержавеющей стали и рассчитаны на длительный срок эксплуатации. При использовании водонагревателя для технологических нужд допускается исполнение бака из углеродистой стали. Снаружи ёмкость изолирована теплоизоляцией толщиной 100 мм и защищена полимерным покрытием.
Характеристики водонагревателя объёмом 2500 литров
Вертикальный накопительный водонагреватель обеспечивает стабильную работу системы горячего водоснабжения и покрывает пиковые расходы. Основные технические параметры:
номинальная ёмкость бака - 2500 литров;
материал бака - нержавеющая сталь AISI 304 или углеродистая сталь S235JR;
высота - 2570 мм;
внешний диаметр - 1420 мм;
толщина теплоизоляции - 100 мм;
масса оборудования - 500 кг;
допустимое рабочее давление - 0,6 МПа;
максимальная электрическая мощность встроенных ТЭНов - до 150 кВт.
Конструкция допускает подключение внешнего пластинчатого теплообменника или установку встроенного змеевика из нержавеющей стали для косвенного нагрева от системы отопления здания.
Преимущества водонагревателя на 2500 литров
Промышленные водонагреватели «Невский» проектируются с учётом требований к надёжности и безопасности эксплуатации и оснащаются следующими решениями:
нержавеющие блок-ТЭНы с высокой коррозионной стойкостью;
эффективная теплоизоляция для снижения теплопотерь;
термоограничитель для защиты от перегрева воды;
автоматическая защита электрических цепей от перегрузок и короткого замыкания;
предохранительный клапан и манометр для контроля давления.
Звоните по телефону 8 (800) 533-89-45, чтобы купить накопительный вертикальный водонагреватель 2500 литров «Невский» и уточнить актуальные условия поставки.
Сайт использует файлы cookie.
Когда вы посещаете страницы сайта, мы обрабатываем ваши данные и можем передать сторонним партнерам. Если согласны, продолжайте пользоваться сайтом. Если нет – обратитесь в техподдержку. Подробнее "Политика конфиденциальности"